Назовите оператору контакт центра при звонке ваш промокод:    

Безопасная аренда

Подробнее

Онлайн просмотры и договор с цифровой подписью

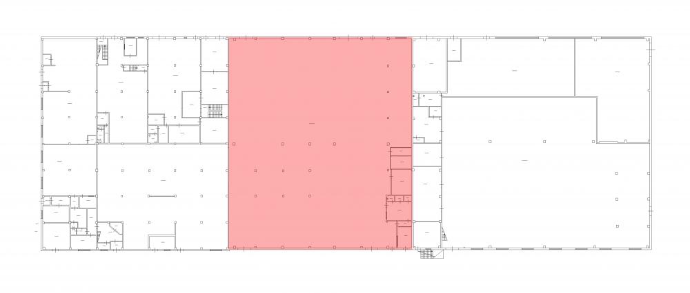
Помещение
Этаж 1
Площадь 2 058.5 м2
Ставка 1 386 руб./м2
Характеристики
Безопасность
Охрана Круглосуточная
Коммуникации
Телефон есть
Интернет оптоволокно
В арендную плату входит
  • Профессиональное управление
  • НДС
Оплачивается отдельно
  • Клининг
План помещения
Описание
Аренда производственно-складского блока от собственника на Маршала Новикова, дом 28.
К услугам арендаторов: выделенная электрическая мощность 50 кВт, отопление, ХВС, водоотведение.

Ближайшая станция метро "Комендантский проспект".

Общая площадь блока - 2058.4 кв. м.
Н потолка 8.90 м, беспылевое покрытие пола, роллетные ворота (4.3 м на 4 м) (4 шт.).

Удобный подъезд для большегрузного транспорта.

Имеется охраняемая парковка.
Охрана 24 часа.
Возможен круглосуточный режим работы.
+7 (812) 493-52-15
Перезвоните мне
Хотите посмотреть? Покажем вам это помещение и несколько похожих
Запишитесь на просмотр
Вас также может заинтересовать
2056.2 м2
2 849 893.2 руб