Назовите оператору контакт центра при звонке ваш промокод:    

Безопасная аренда

Подробнее

Онлайн просмотры и договор с цифровой подписью

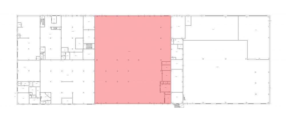
Помещение
Этаж 1
Площадь 2 056.2 м2
Ставка 1 386 руб./м2
Характеристики
Безопасность
Охрана Круглосуточная
Коммуникации
Телефон есть
Интернет оптоволокно
В арендную плату входит
  • Профессиональное управление
  • НДС
Оплачивается отдельно
  • Клининг
План помещения
Описание
Предлагаем в аренду производственный блок на 1 этаже здания на территории технопарка "Новикова".
В помещениях высокие потолки , беспылевое покрытие пола и роллетные ворота (4 шт.).

Имеются все необходимые для работы инженерные системы и коммуникации(ХВС, электроснабжение, теплоснабжение), интернет и телефония.
Территория находится под круглосуточной охраной с постоянным видеомониторингом периметра.

Система контроля и управления доступом позволяет вести учет рабочего времени сотрудников.
Датчики автономной системы пожаротушения берегут от возникновения чрезвычайных ситуаций.

Оборудована вместительная парковка с удобной зоной для маневрирования грузового транспорта.
С заботой о сотрудниках на территории работает кафетерий, поблизости есть различные магазины.

Комплекс находится в Приморском районе города, вблизи станции метро "Комендантский проспект".
Рядом пролегают крупные автомагистрали: Парашютная улица и Западный скоростной диаметр.
+7 (812) 493-52-15
Перезвоните мне
Хотите посмотреть? Покажем вам это помещение и несколько похожих
Запишитесь на просмотр
Вас также может заинтересовать
2058.5 м2
2 853 081 руб