Назовите оператору контакт центра при звонке ваш промокод:    

Безопасная аренда

Подробнее

Онлайн просмотры и договор с цифровой подписью

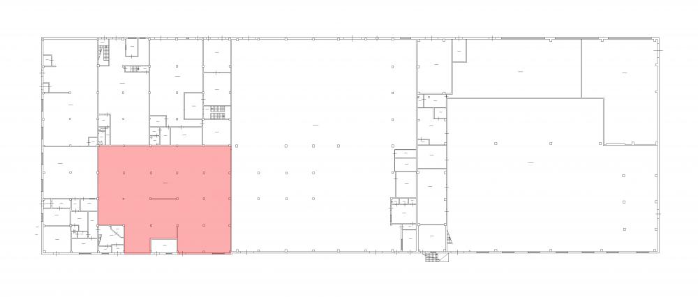
Помещение
Этаж 1
Площадь 680.1 м2
Ставка 1 042 руб./м2
Характеристики
Безопасность
Охрана Круглосуточная
Коммуникации
Телефон есть
Интернет оптоволокно
В арендную плату входит
  • Профессиональное управление
  • НДС
Оплачивается отдельно
  • Клининг
План помещения
Описание
Предлагаем в аренду крупный производственный блок 680,1 кв. м в Приморском районе Санкт-Петербурга.

Находится на 1 этаже здания, расположенного по адресу: улица Маршала Новикова, дом 28.
Неподалеку пролегают крупные магистрали: Западный скоростной диаметр и Парашютная улица.
Ближайшая станция метро "Комендантский проспект" всего в нескольких минутах ходьбы.

Помещение оснащено выделенной электрической мощностью, отоплением и освещением.
Внутри высокие потолки (3,25 м), беспылевое покрытие пола и окрашенные стены.
Ворота 2.5х2.5м на высоте 30-40 см от земли.

В целях поддержания высокого уровня безопасности осуществляется круглосуточная охрана.
Повсюду установлены камеры видеонаблюдения и датчики противопожарной сигнализации.
Доступ на объект производится по специальным магнитным картам через пропускные пункты.

Для комфорта сотрудников на территории имеются просторная охраняемая парковка и кафе.
+7 (812) 493-52-15
Перезвоните мне
Хотите посмотреть? Покажем вам это помещение и несколько похожих
Запишитесь на просмотр
Вас также может заинтересовать
680.1 м2
715 465.2 руб