Назовите оператору контакт центра при звонке ваш промокод:    

Безопасная аренда

Подробнее

Онлайн просмотры и договор с цифровой подписью

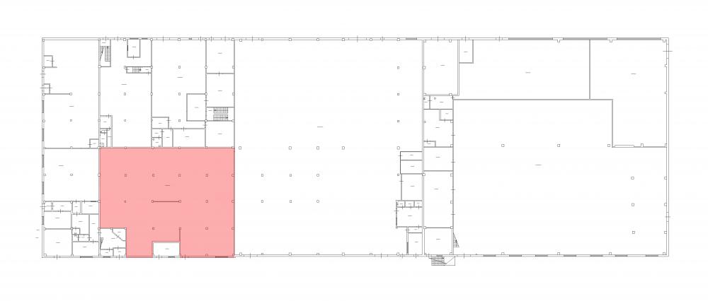
Помещение
Этаж 1
Площадь 680.1 м2
Ставка 1 052 руб./м2
Характеристики
Безопасность
Охрана Круглосуточная
Коммуникации
Телефон есть
Интернет оптоволокно
В арендную плату входит
  • Профессиональное управление
  • НДС
Оплачивается отдельно
  • Клининг
План помещения
Описание
В аренду предлагается производственное помещение площадью 680,1 кв. м.
Адрес: ул. Маршала Новикова, д. 28, литера Е.
1 этаж.

Помещение и идеально подойдет по цех легкой промышленности.

Оснащение: выделенная электрическая мощность (40 кВт, возможно увеличение), отопление и освещение.

Высота потолка — 3,25 м.
Пол — беспылевое покрытие, стены окрашены.
Ворота: 2,5×2,5 м, высота от земли — 30–40 см.

Территория охраняется круглосуточно, установлены камеры видеонаблюдения.
Доступ по магнитным картам.

На территории — охраняемая парковка и кафе.
+7 (812) 493-52-15
Перезвоните мне
Хотите посмотреть? Покажем вам это помещение и несколько похожих
Запишитесь на просмотр
Вас также может заинтересовать
680.1 м2
708 664.2 руб