Назовите оператору контакт центра при звонке ваш промокод:    

Безопасная аренда

Подробнее

Онлайн просмотры и договор с цифровой подписью

Помещение
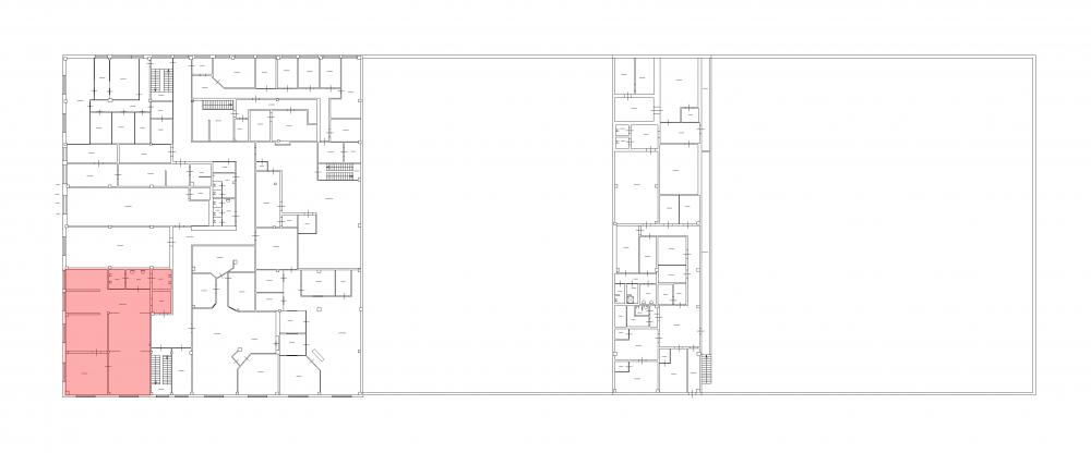
Этаж 2
Площадь 248.3 м2
Ставка 793 руб./м2
Характеристики
Безопасность
Охрана Круглосуточная
Коммуникации
Телефон есть
Интернет оптоволокно
В арендную плату входит
  • Профессиональное управление
  • НДС
Оплачивается отдельно
  • Клининг
План помещения
Описание
Аренда современного офиса для строительной компании в бизнес-центре по адресу: ул. Маршала Новикова, дом 28.
Площадь помещения: 248,3 кв. м — идеальное решение для размещения сотрудников строительной компании.

Транспортная доступность:
*Близость к станциям метро "Комендантский проспект" и "Удельная" (пешая доступность);
*Удобная транспортная развязка благодаря расположению на Парашютной улице и Коломяжском проспекте.

Окружающая инфраструктура:
*Мартыновский сквер;
*Сквер Генерала Селезнёва;
*Парк "Озеро Долгое".

Система безопасности:
*Круглосуточная охрана территории;
*Видеонаблюдение 24/7;
*Пропускная система доступа.

Инженерные системы:
*Качественный ремонт помещений;
*Полное инженерное оснащение;
*Высокоскоростной интернет и телефония (оплачиваются отдельно).

Инфраструктура БЦ:
*Просторная парковка для сотрудников;
*Функционирующее кафетерий на территории;
*Благоустроенная территория.

Это помещение идеально подойдёт для размещения офиса строительной компании, обеспечивая комфортные условия для работы и удобный доступ как для сотрудников, так и для клиентов.
+7 (812) 493-52-15
Перезвоните мне
Хотите посмотреть? Покажем вам это помещение и несколько похожих
Запишитесь на просмотр
Вас также может заинтересовать
248.5 м2
214 952.5 руб
247.2 м2
182 433.6 руб