Назовите оператору контакт центра при звонке ваш промокод:    

Безопасная аренда

Подробнее

Онлайн просмотры и договор с цифровой подписью

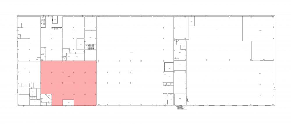
Помещение
Этаж 1
Площадь 681.2 м2
Ставка 1 062 руб./м2
Характеристики
Безопасность
Охрана Круглосуточная
Коммуникации
Телефон есть
Интернет оптоволокно
В арендную плату входит
  • Профессиональное управление
  • НДС
Оплачивается отдельно
  • Клининг
План помещения
Описание
Аренда помещения под продуктовый склад на 1-м этаже здания на территории технопарка "Новикова".

Отдельный вход, ворота 2.5х2.5м на высоте 30-40 см от земли.
Ближайшая станция метро - "Комендантский проспект".

Оснащение: пожарная сигнализация, отопление, освещение.
Потолки 3,25 м.
Бетонный пол.

Парковка на территории.

Звоните и записывайтесь на просмотр!
+7 (812) 493-52-15
Перезвоните мне
Хотите посмотреть? Покажем вам это помещение и несколько похожих
Запишитесь на просмотр
Вас также может заинтересовать
680.5 м2
709 081 руб