Назовите оператору контакт центра при звонке ваш промокод:    

Безопасная аренда

Подробнее

Онлайн просмотры и договор с цифровой подписью

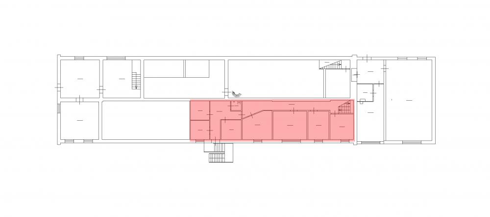
Помещение
Этаж 2
Площадь 148 м2
Ставка 1 019 руб./м2
Характеристики
Безопасность
Охрана Круглосуточная
Коммуникации
Телефон есть
Интернет оптоволокно
В арендную плату входит
  • Профессиональное управление
  • НДС
Оплачивается отдельно
  • Клининг
План помещения
Описание
В аренду от собственника сдаётся офисный блок площадью 148 кв. м.

Второй этаж здания на улице Маршала Новикова, д. 28.
Кабинетная планировка.
Собственный санузел.

Услуги: высокоскоростной интернет и цифровая телефония.
На территории есть кафе и парковка.

Более подробную информацию можете узнать у менеджеров колл-центра.

АКЦИЯ: Парковка в подарок
+7 (812) 493-52-15
Перезвоните мне
Хотите посмотреть? Покажем вам это помещение и несколько похожих
Запишитесь на просмотр
Вас также может заинтересовать
156.9 м2
219 503.1 руб
155.1 м2
216 984.9 руб
150 м2
149 850 руб
156.5 м2
89 674.5 руб